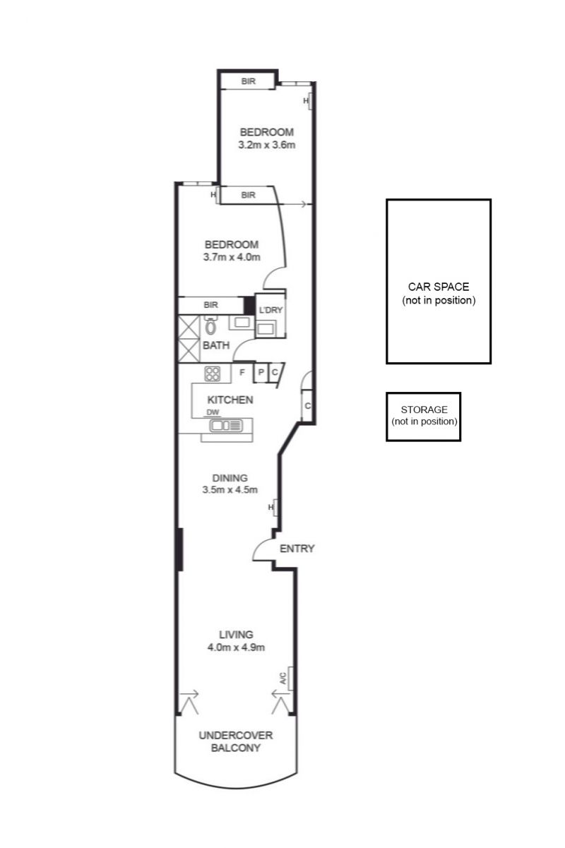
3/43 Rosslyn Street, West Melbourne
- 2 Bed
- 1 Bath
- 1 Car
Sold date: 24th Dec 2020
**UPDATE** Deadline Sale 5.00pm Saturday 19th Dec 2020
Situated in a small, private and secure block, this oversized sized apartment is a must inspect.
- Deadline Sale if Not Sold Prior **UPDATED** - 5.00pm Saturday 19th December 2020
- Located in a lovely wide tree lined street
- Generous 97m2 of functional living space
- Positioned securely on the second floor
- Huge open living dining area with floating floorboards
- Living flows to the generous balcony, perfect for alfresco dining
- Lovely Northern aspect provides excellent light and sun
- Family sized kitchen with gas cooktop, ample storage & bench space
- Two generous sized bedrooms both with built in robes
- Refurbished central bathroom with twin shower
- Heating and cooling for year-round comfort
- Freshly painted throughout
- Brand new LED downlights installed throughout
- Secure basement car park & storage cage
- Additional dual or single street parking permit available
- Short stroll to Flagstaff gardens & Flagstaff Station
- Nearby tram makes for an easy commute
Whilst every care is taken to ensure accuracy of the sizes, plans & information contained herein no guarantees or warranties are given. Clients are required to make their own investigations, carefully check the formal legal documentation & seek independent professional legal advice.
contact
Email Agent
property tools
Email to a Friend
property information
- Property Type Apartment for Sale
- Size (approx.) 97 m2
- Building Name N/A
- Facilities N/A
- Number of apartments in complex 15
- Number of apartments in block 15
- Owners Corporation TBC
- Zoning Mixed Use Zone
- Council Rates $1,631 pa
- Water Rate $667 pa
- Owners Corporation Fees $2,654 pa
Testimonials
Recommended

John - Carlton Buyer
John - Carlton Buyer
Delivered on every promise – Fantastic result

Grant
Little Collins Street Vendor
Grant
Little Collins Street Vendor
Professional, kind, and helpful in every way!

Amanda
394 Collins Street, Melbourne - Purchaser
Amanda
394 Collins Street, Melbourne - Purchaser
Rolls Royce experience
Through the process of inspections/auction/purchase, as a purchaser I always appreciated that Rhiannon was that rare agent who does a great job representing the seller, while at the same time managing to be ethical, professional, responsive and transparent in her dealings with potential buyers. As I became interested in the property, Rhiannon's enthusiasm for the property was shared and contagious, and I looked forward to delightedly discussing the architectural and other features each time I inspected the property prior to purchase.
Would highly recommend.
Andrew
Flagstaff Lane, West Melbourne - Purchaser
Andrew
Flagstaff Lane, West Melbourne - Purchaser
A pleasure

Nigel & Keely
Wellington Parade South Buyer
Nigel & Keely
Wellington Parade South Buyer
Delivered on every promise – Fantastic result
We couldn't have been happier and would highly recommend you to have Dionne handle the sale of your property.

Grant
Little Collins Street Vendor
Grant
Little Collins Street Vendor
Outstanding Realtor
Ken
241 City Road, Southbank - Buyer
Ken
241 City Road, Southbank - Buyer
A first class professional

Jock & Phillippa
Wellington Parade Vendor
Jock & Phillippa
Wellington Parade Vendor
Excellent Agent, Cannot Fault!

Elizabeth & Bill
Melbourne Vendor
Elizabeth & Bill
Melbourne Vendor
A joy to interact with

Amanda
Melbourne Buyer
Amanda
Melbourne Buyer
Highly recommended
Paul
Melbourne Purchaser
Paul
Melbourne Purchaser
Awesome attention to customers
Jo & Victor - Russell Street Vendor
Jo & Victor - Russell Street Vendor
Personable with an easy manner

Anthony & Susie
Wellington Crescent Vendor
Anthony & Susie
Wellington Crescent Vendor
James Edmundson – Harcourts Melbourne City
Eddie
East Melbourne Vendor
Eddie
East Melbourne Vendor
Professional Agent

Shawqi
Vendor - Melbourne
Shawqi
Vendor - Melbourne
Excellent Service and professionalism
Aleksandar – Buyer
Aleksandar – Buyer
Sensational Result

Anne & Leigh
Russell Street Vendors
Anne & Leigh
Russell Street Vendors
Scarlett is amazing
Fangrong – Vendor
Fangrong – Vendor
I feel like I was dealing with a Friend

Katerina
Melbourne Vendor
Katerina
Melbourne Vendor
Excellent Agent

Joanne - East Melbourne Vendor
Joanne - East Melbourne Vendor
Hardworking, proactive and polite. Would highly recommend!
Wei Yuan Cho – Vendor
Wei Yuan Cho – Vendor
Very helpful and extremely professional
Helena – Buyer
Helena – Buyer
Good Communicator

Neale - St Kilda Road Purchaser
Neale - St Kilda Road Purchaser
Great Agent
Russell
Wills Street Vendor
Russell
Wills Street Vendor
Always great sales results, she keen to work round the clock
Kinga
7 Katherine Place, Melbourne - Vendor
Kinga
7 Katherine Place, Melbourne - Vendor
USE LE-HOA AGAIN
I was happy to let her handle the sale of my home.It was only few weeks latter that Le-Hoa had my house Sold for what I wanted and could not get with the other agency.
She was very professional, friendly and I am happy to have been associated with her and her agency.I WILL USE LE-HOA AGAIN IN MY FUTURE REALESTATE VENTURES.
Thank you Le Hoa
Vicki - Vendor
Vicki - Vendor
Professional, personable, hard-working, achieving excellent results.
Dionne and team were professional and approachable from first contact, through to sale. I have had occasion to work with a number of real estate agents of recent years and Dionne is head-and-shoulders above the rest.
Dionne produces a weekly emailed “promise report” which gives an update on all people who have made contact via phone, email, private inspections and open inspections together with a summary of what has transpired with each. After every open inspection, she makes a phone call to provide info on potential buyers’ feedback. Dionne does her homework and knows the area inside out and is therefore able to make people feel “at home.” I have been impressed with the way that she is able to look at a property … appreciate it for what it is … and then see ways in which it could be enhanced should buyers wish to engage in improvement.
Dionne is a “straight shooter” and does not engage in exaggerated or unrealistic talk. She is open and honest. I have been thoroughly satisfied with Dionne and her team’s work, from start to finish. Dionne and her team at Melbourne Harcourts City (WHU) are the obvious and best choice for people buying and selling in the city centre and the inner city of Melbourne.
Pascal - North Melbourne Vendor
Pascal - North Melbourne Vendor
Excellent agent

Joanne & Michael
East Melbourne Vendors
Joanne & Michael
East Melbourne Vendors
It would have been hard for anyone to improve on what Rhiannon did for us
Together we decided a strategy to market our property and take it to auction and we think it would have been difficult to improve on the result we got.
We would have no hesitation in recommending Rhiannon to market your property.
Stephen
243 Collins Street - Vendor
Stephen
243 Collins Street - Vendor
James Edmundson is a fist-rate real estate agent
Philip - Powlett Street Buyer
Philip - Powlett Street Buyer
Professional & Helpful
Jyssica - Little Collins Street Buyer
Jyssica - Little Collins Street Buyer
Excellent result for CBD Heritage property

Michael
Flinders Lane Vendor
Michael
Flinders Lane Vendor
Great Agency

Ercong & Yuanmeng
Melbourne Tenants
Ercong & Yuanmeng
Melbourne Tenants
Excellent Service

Peter
Vendor
Peter
Vendor
Easy to deal with and reliable

Peter & Jennifer
East Melbourne Purchasers
Peter & Jennifer
East Melbourne Purchasers
Exceptional
Evie
Wills Street Buyer
Evie
Wills Street Buyer
Selling experience
Fikret - Vendor
Fikret - Vendor
Thanks James!

John
Carlton Buyer
John
Carlton Buyer
Fantastic agent!
Flora
555 Flinders Street, Melbourne - Purchaser
Flora
555 Flinders Street, Melbourne - Purchaser
Good communicator

Neale
Melbourne Purchasers
Neale
Melbourne Purchasers
Selling my property
A very big player for selling in our area and very trust worthy and professional in her dealing with me. Feedback was constant, in letting me know how things were traveling etc . I would recommend Le-Hoa to any of my family and friend to sell there home.
Deafeningly would use her a gain. Greg
Greg - Vendor
Greg - Vendor
Very Professional and Great to Work With
Rhiannon is extremely professional and knows exactly what is required to get a deal done with the least amount of fuss. Even after the sale, Rhiannon's follow up was superb. If we were ever to sell one of our properties we would definitely call upon Rhiannon for her expertise to handle it for us.
Peter
24 Little Bourke Street, Melbourne - Buyer
Peter
24 Little Bourke Street, Melbourne - Buyer
Professional Agent

Gregory
Wellington Parade South Buyer
Gregory
Wellington Parade South Buyer
Very knowledgeable and good communication
Constantine - Russell Street Buyer
Constantine - Russell Street Buyer
Efficient & Professional

Valerie
Melbourne Vendor
Valerie
Melbourne Vendor
An exceptional team

Tim & Kristina
Melbourne Purchasers
Tim & Kristina
Melbourne Purchasers
Great Agent

Kirstin
Hotham Street Buyer
Kirstin
Hotham Street Buyer
Fantastic Agent!
Dionne’s experience, professionalism and effective communication definitely made our sales process easier and she delivered all the way to the end!

Vedran
Vendor
Vedran
Vendor
Professional all the way through and delivered a fantastic result

Mark
Vendor
Mark
Vendor
Great Agent

JP - Melbourne Vendor
JP - Melbourne Vendor
Hard working relentless agent

Greg & Anne, Bruno & Marisa - Brunswick Vendor
Greg & Anne, Bruno & Marisa - Brunswick Vendor
Authentically Personable with a full working knowledge of the market
Julianne
300 King Street, Melbourne - Vendor
Julianne
300 King Street, Melbourne - Vendor
Great Experience

Dean - Melbourne Purchaser
Dean - Melbourne Purchaser
Above and beyond

Claire
West Melbourne Vendor
Claire
West Melbourne Vendor
Professional Agent and Professional Firm
Once agreement had been reached on the purchase within in 2 hours Harcourts back office had emailed our lawyer with a soft copy of all relevant documentation again professional and efficient.
We have no hesitation in recommending James Edmundson and Harcourts.

Sarah
Melbourne Purchaser
Sarah
Melbourne Purchaser
Dionne was amazing!

Kathleen
Melbourne Vendor
Kathleen
Melbourne Vendor
Best agent I’ve dealt with – and I have worked with more than a few.
Mahaa
City Road, Southbank - Vendor
Mahaa
City Road, Southbank - Vendor
Listen to Rhiannon’s advise!
I almost forgot to mention that the property was on the market for only one week before it was sold.
Double wow!!
Bill
555 Flinders Street, Melbourne - Vendor
Bill
555 Flinders Street, Melbourne - Vendor
Defiantly go to her first!
Bonnie - Buyer
Bonnie - Buyer
Rhiannon was the best agent I could have hoped for
Jodie
33 Cliveden Close, East Melbourne - Vendor
Jodie
33 Cliveden Close, East Melbourne - Vendor
Great agent & communicator
Janelle & Paul
Hotham Street Vendor
Janelle & Paul
Hotham Street Vendor
Above & Beyond
The customer service and attention to detail was exceptional. Communication was constant and honest, we always felt like we were in control and had up to date information. It was as is if we had an all knowledgeable friend in our corner working tirelessly to get us the best outcome.
Rhiannon is a phenomenal operator, do not look any further when selling your property. Thanks Gus
Gus
Flagstaff Lane, West Melbourne - Vendor
Gus
Flagstaff Lane, West Melbourne - Vendor
Friendly & Helpful

Meagan & Julian
1 Wellington Crescent - Buyer
Meagan & Julian
1 Wellington Crescent - Buyer
Great Agent

Michaela
Flinders Lane Buyer
Michaela
Flinders Lane Buyer
Very thorough
Grant
Kings Way Vendor
Grant
Kings Way Vendor
Exceptional Agent

Grant
Melbourne Vendor
Grant
Melbourne Vendor
Totally recommend her!
Oana Alexandra Balaban – Vendor
Oana Alexandra Balaban – Vendor
Simply The Best
Julianne
29 Market Street - Vendor
Julianne
29 Market Street - Vendor
Agent Review

John - Carlton Buyer
John - Carlton Buyer
Harcourts Team is amazing!

Kal
Vendor
Kal
Vendor
Knowledgeable and gets results

Erin
Melbourne Vendor
Erin
Melbourne Vendor
Knowledgeable agent
Angela
Angela
Most Knowledgable, experienced, responsible agent we met ever
Bob and Sophie - Vendor
Bob and Sophie - Vendor
Very happy clients
Meagan - Vendor
Meagan - Vendor
Good Agent

Malcolm
Purchaser
Malcolm
Purchaser
James is very professional and was a pleasure to deal with recently when I bought a property.
Chris - Wellington Parade South Buyer
Chris - Wellington Parade South Buyer
Made our purchase possible

Justin
238 Flinders Lane Buyer
Justin
238 Flinders Lane Buyer
James Edmundson is highly recommended
Don't risk a disappointing outcome, call James today!

Will & Sarah
Melbourne Vendor
Will & Sarah
Melbourne Vendor
Highly recommend
Luvy – Vendor
Luvy – Vendor
Second to None
Dionne will not go just the proverbial extra mile, but will go dozens, if need be. We witnessed how professional peers from other reputable agencies admire her for her genius skills, including those as a truely breathtaking auctioneer.

Marcelo
Melbourne Vendor
Marcelo
Melbourne Vendor
Professional Agent

Sawqi - St Kilda Road Vendor
Sawqi - St Kilda Road Vendor
Timely and Professional Service
David - Franklin Street Buyer
David - Franklin Street Buyer
Great agent

Very clear and articulate guy, excellent work all round. Outstanding agent
Very clear and articulate guy, excellent work all round. Outstanding agent
Best in the business!
Le-Hoa was wonderful to deal with in what can be a stressful process.
H
Harjeet - Vendor
Harjeet - Vendor
Very professional agent

Paul
Collins Street Buyer
Paul
Collins Street Buyer
Exceptional

Leigh & Rebecca
Market Street Vendor
Leigh & Rebecca
Market Street Vendor
From a vendor
I have no hesitation in recommending her to this website and can’t thank her enough for her wisdom and support.
Cathy - Collins Street Vendor
Cathy - Collins Street Vendor
Professional agent
We would use him again, should we do busisness in Melbourne

Peter & Valerie
Melbourne Vendor
Peter & Valerie
Melbourne Vendor
Excellent Agent

Kun
Flinders Street Vendor
Kun
Flinders Street Vendor
Honest, Charming, Smart
Steve
Albion Street Buyer
Steve
Albion Street Buyer
Responsive, helpful.

Raymond
Russell Street Vendor
Raymond
Russell Street Vendor
Above & Beyond

Dione & Misa
Flinders Lane Vendor
Dione & Misa
Flinders Lane Vendor
Exceptional service
Could not be more pleased with our choice of engaging Dionne as our agent and would thoroughly recommend her to anyone looking for someone who I really feel sets the bar in her profession.
Thank you so much Dionne .
Geoff - Collins Street Vendor
Geoff - Collins Street Vendor
Very happy, she’s a great agent
Thank you Le-Hoa
Josephine - Vendor
Josephine - Vendor
Sale of my apartment East Melb

Harry & Petrone
East Melbourne Vendors
Harry & Petrone
East Melbourne Vendors
Very Professional

Ian & Narelle
Collins Street Vendor
Ian & Narelle
Collins Street Vendor
Rhiannon provides the best service – again!
The fact she knows where to get the bet donuts in Melbourne doesn't hurt either! :)
Joe - 173 City Road, Southbank - Purchaser
Joe - 173 City Road, Southbank - Purchaser
Exemplary customer service
We met Rhiannon during the inspection time when we were searching for an investment property to purchase. Rhiannon was pleasant and helpful but not pushy. She answered our queries with much patience and provided additional information to assist us in decision making. Once we made the decision to proceed, Rhiannon played an important role in the communications between the vendor and us. She kept us updated regularly.
Rhiannon has shown her commitment to excellence and dedication to customer service. We would not hesitate in recommending her to anyone.
Sherri-Didi
601 Little Lonsdale Street - Purchaser
Sherri-Didi
601 Little Lonsdale Street - Purchaser
Great Agent

John & Pauline
Melbourne Vendor
John & Pauline
Melbourne Vendor
Great Sales

Peter - Melbourne Buyer
Peter - Melbourne Buyer
Fantastic experience

Glen
Melbourne Vendor
Glen
Melbourne Vendor
Professional Agent

Shawqi - Melbourne Vendor
Shawqi - Melbourne Vendor
Professional, knowledgeable and friendly agent
Stephen and Angel - Vendor
Stephen and Angel - Vendor
Highly Recommended

Lidia - Carlton Vendor
Lidia - Carlton Vendor
A great Real Estate Agent!!!
Binh An Nguyen - Purchaser
Binh An Nguyen - Purchaser
Fantastic Agent!

Erin
Collins Street Vendor
Erin
Collins Street Vendor
The Best
First of all I am thrilled that Mandy has made a purchase at 29 Market St. And congratulations to you and Chico for selling 603.
Real Estate has been a passion of mine for over 40 years and without doubt your professional skills, personality and manner far exceed anything I’ve encountered in all that time.
I sincerely hope I get to do business with you at a later date. I have put my Port Fairy property on the market - same agent I’ve always dealt with down there ( were both getting old!). Auctions aren’t the way to go but Agent is a good friend and never let me down. My property there is a one off, unusual building in good location so .........
I am passionate about getting a little space in number 29 in the not too distant future and look forward to meeting you again.
Kind regards
Rae

Rae
Rae
A True Professional

George
Melbourne Vendor
George
Melbourne Vendor
Helpful and Approachable

Baph & Michelle
Collins Street Buyers
Baph & Michelle
Collins Street Buyers
Highly Recommended

Lidia - Carlton Vendor
Lidia - Carlton Vendor
Highly Recommended

Caroline - Richmond Vendor
Caroline - Richmond Vendor
very professional and outstanding communication
Rachael & Geoff - Collins Street Vendors
Rachael & Geoff - Collins Street Vendors
James was excellent to deal with

Andrew & Nicole
Melbourne Purchasers
Andrew & Nicole
Melbourne Purchasers
Smooth Process

Ease Investments
Purchaser
Ease Investments
Purchaser
Highly Knowledgeable

Jane & Chris
Melbourne Vendor
Jane & Chris
Melbourne Vendor
Professional and to the point.

Philip
East Melbourne Purchaser
Philip
East Melbourne Purchaser
Clear & Organised Strategy

Ian
East Melbourne Vendor
Ian
East Melbourne Vendor
Eye for details

Leno
Purchaser
Leno
Purchaser
Great Agent
Thank you very much for helping and making the sale of property successfully. You have made the transaction between vendor/buyer smoothly with your well communication and excellent service. Again, thanks for your help, regards, thong
Thongle - Purchaser
Thongle - Purchaser
Professional & personable

Grant
Purchaser
Grant
Purchaser
Buying a townhouse and then selling an apartment

Marilyn & Rodney
Wellington Parade South Vendors
Marilyn & Rodney
Wellington Parade South Vendors
Flexible and easy
A
Alice - Buyer
Alice - Buyer
Easy to deal with and reliable

Peter - East Melbourne Purchaser
Peter - East Melbourne Purchaser
Sale of our Unit
Thank you James, it was a pleasure dealing with you.
David & Sonja - Russell Street Vendors
David & Sonja - Russell Street Vendors
Great Sale
David - Vendor
David - Vendor
Fantastic Agent!
Good Experience

Shaylin - Little Lonsdale Street Buyer
Shaylin - Little Lonsdale Street Buyer
Great service, very knowledgeable and great communicator

Lisa & Sam
Melbourne Vendor
Lisa & Sam
Melbourne Vendor
Excellent Outcome
House sold prior to auction at a price we were ecstatic with.
Would highly recommend Le-Hoa to any prospective seller or purchaser.
Alex - Vendor
Alex - Vendor
Great Agent
I will recommend anyone to choose her as your agent.
Joey
11 Cohen Place, Melbourne - Vendor
Joey
11 Cohen Place, Melbourne - Vendor
From a Buyer and Vendor Advocates view
David
Buyer/Vendors Advocate
David
Buyer/Vendors Advocate
Really Knowledgeable Agent

Chris & Alexandra
Anthony Street Vendors
Chris & Alexandra
Anthony Street Vendors
Very Good Agent
James was very easy to talk with as well as answered our questions readily and seemed very knowledgeable regarding the market, although our first expectatations were slightly higher than market expectations reinforced by James, but then tempered by the actual market forces.
Communications with James was cordial at all times and he was prepared to listen. Jame's advice to us regarding painting and carpeting was readily accepted and I believe helped us achieve our goal.
The professionalism and trustworthiness of James was always evident. James would always follow questions up for us and return with an answer if he didn't know and fulfill requests from us when asked.
The most prominent trait of James that we realised was his determined tenaciousness to achieve a satisfactory result for us by following up any prospective bidders and never leaving any stone unturned or forgetting about our unit. James's had the ability to make us think we were his priority.
I would have no hesitation using James again as my selling agent.

Maree & John
Vendors
Maree & John
Vendors
Professional, approachable and goes the extra mile.
Danica
61 Mackenzie street, Melbourne - Buyer
Danica
61 Mackenzie street, Melbourne - Buyer
Absolute pleasure!
Ash
555 Flinders Street, Melbourne - Vendor
Ash
555 Flinders Street, Melbourne - Vendor
Great Agent
Would use again.

Nick
Melbourne Vendor
Nick
Melbourne Vendor
SALE WHILE IN LOCKDOWN!
After a short interview with Dionne and her team it was apparent they would handle the sale.
Our campaign was launched just before the covid19 became a concern but almost immediately had a very adverse affect across the entire realestate market with the government imposed restrictions.
Dionne and her team faced with enormous difficulties met them head on with a strong ongoing campaign resulting in the sale which was beyond our expectations. Our apartment was sold within the promised price range with an added short settlement and unconditional terms to make it perfect.
Dionne clearly demonstrated to me that they are both at the top of their game and professional handling of the campaign are both beyond reproach.
My Wife and I thank you.
Angelo & Olga - Queen Street Vendors
Angelo & Olga - Queen Street Vendors
James Edmundson

Rose
Spencer Street Buyer
Rose
Spencer Street Buyer
